Art der Immobilie
Gewerbeeinheit
Gewerbefläche
72 m²
Zimmeranzahl
3
Preis
459.000 €
Baujahr
1910
zzgl. nur 2,9% des Kaufpreises Provision inkl. ges. MwSt.
Berlin-Charlottenburg
3-Zimmer-Gewerbeeinheit in Charlottenburg-Nord
In zentraler Lage von Berlin-Charlottenburg, unweit des Kurfürstendamms, befindet sich diese attraktive Gewerbeeinheit in der Klaustaler Straße. Die Umgebung zeichnet sich durch eine gewachsene Infrastruktur, vielfältige Einkaufsmöglichkeiten sowie eine hervorragende Anbindung an den öffentlichen Nahverkehr aus. Ob Büro, Praxis oder Showroom – die Lage bietet beste Voraussetzungen für unterschiedliche Nutzungskonzepte in einem repräsentativen Umfeld.
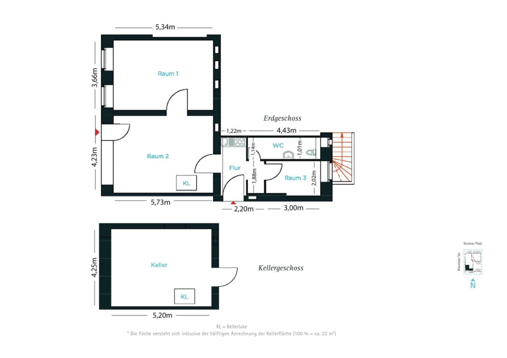
Grundriss
Energieausweis
- A+
- A
- B
- C
- D
-
102,1 kWh/(m²·a)E
- F
- G
- H
Ihr Ansprechpartner



